top of page

Bluefoot
Architecture & Design
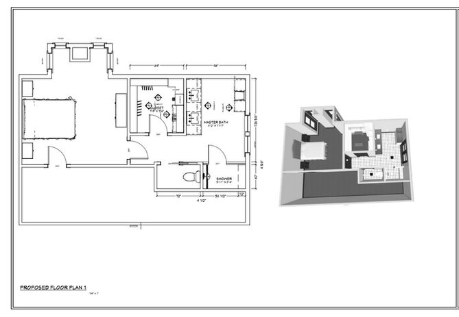
Historic Farmhouse
After moving to their 120-year-old farmhouse full time,
these homeowners found that they no longer wanted to share a single bathroom for 5 bedrooms.
Our brief was to add a bathroom without expanding the footprint of the home, and to create additional storage for clothing, books and modern "conveniences" - like, you know, a TV!
bottom of page









